Service hotline
0086-400-8010-113
Current Location : Home > Products > Heat recovery fresh air fan
● Selected Baosteel fingerprint-resistant steel plate: reliable quality, good mechanical properties, and elegant appearance.
● Patented heat exchange core: higher energy recovery efficiency. (Patent: 201910960256.X, 201720763607.4)
● High-efficiency motor: stable operation and strong power.
● EPS foam volute: light, fireproof, sound-absorbing, and less noise.

1. Indoor temperature display.
2. Three speed adjustment: low, medium and high.
3. Filter replacement reminder.
4. Built-in 485 communication interface.
5. Screen saver backlight, automatically turns off after 60 seconds.

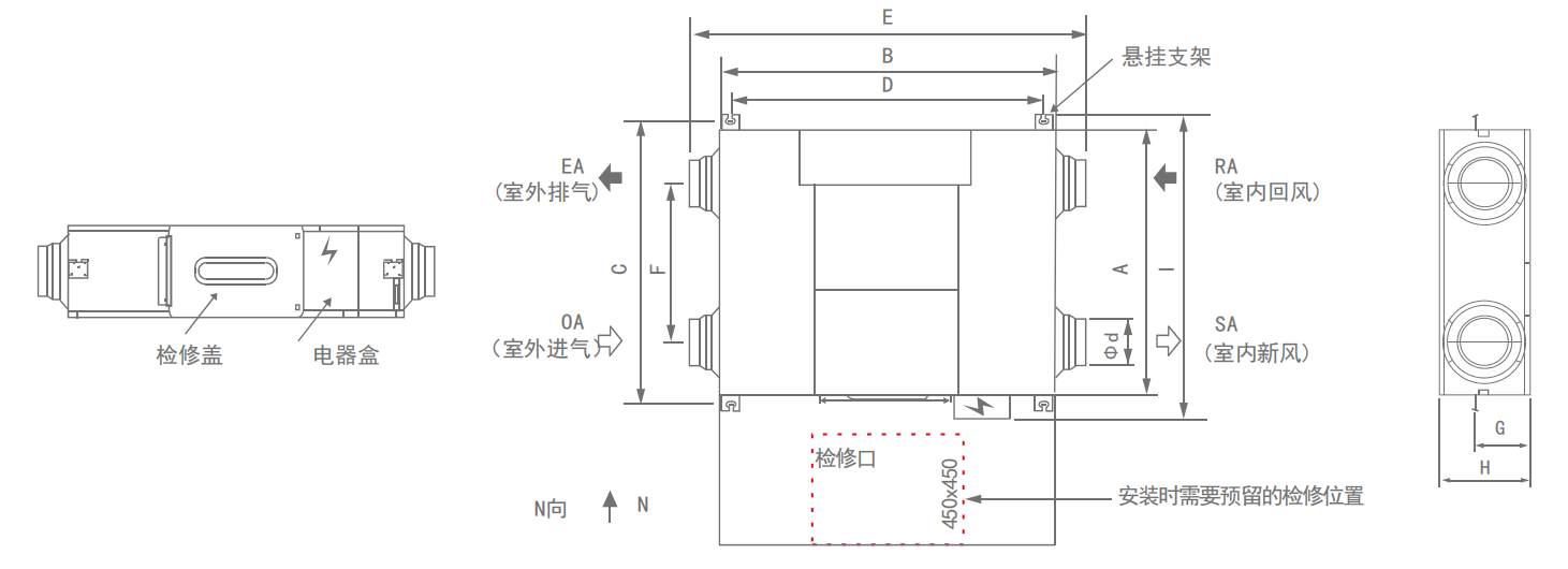
| Model | A | B | C | D | E | F | G | H | I | Φd |
| AHE-25W | 666 | 885 | 720 | 815 | 1075 | 342 | 112 | 270 | 779 | 150 |
| AHE-35W | 810 | 885 | 860 | 815 | 1075 | 485 | 112 | 270 | 924 | 150 |
| AHE-50W | 997 | 966 | 1051 | 896 | 1130 | 728 | 138 | 312 | 1110 | 200 |
| AHE-80W | 885 | 1322 | 936 | 1252 | 1488 | 430 | 172 | 396 | 995 | 250 |
| AHE-100W | 1132 | 1322 | 1186 | 1252 | 1488 | 681 | 172 | 396 | 1246 | 250 |
model | Voltage (V) | Rated power (W) | Air volume (m3/h) | Static pressure (Pa) | Heat recovery rate (%) | Heat recovery rate (%) | Noise dB(A) | Weight (Kg) | ||||||||||
high | middle | Low | high | middle | Low | high | middle | Low | high | middle | Low | high | middle | Low | ||||
AHE-25W | 220 | 105 | 100 | 80 | 250 | 200 | 160 | 85 | 68 | 69 | 72 | 75 | 76 | 77 | 35 | 33 | 31 | 27 |
AHE-35W | 220 | 140 | 125 | 115 | 350 | 310 | 260 | 90 | 67 | 68 | 71 | 71 | 75 | 77 | 36 | 34 | 31 | 31 |
AHE-50W | 220 | 220 | 190 | 170 | 500 | 450 | 400 | 100 | 65 | 68 | 72 | 74 | 75 | 76 | 38 | 35 | 32 | 42 |
AHE-80W | 220 | 350 | 330 | 310 | 800 | 700 | 600 | 150 | 65 | 68 | 70 | 72 | 73 | 74 | 41 | 37 | 33 | 64 |
AHE-100W | 220 | 485 | 440 | 400 | 1000 | 900 | 800 | 150 | 66 | 68 | 70 | 73 | 74 | 75 | 41 | 37 | 33 | 75 |
掃描二維碼添加企業微信